Back to All Homes
Multi-Section
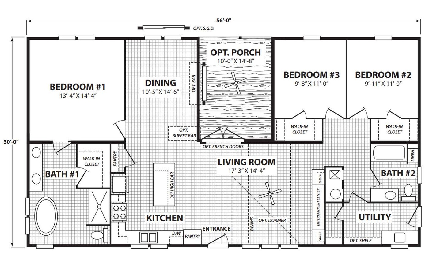
The Axis
3
Beds
2
Baths
1,680
Sq Ft

3 / 8
About This Home
Modern manufactured home showcased at the HUD Innovative Housing Showcase featuring integrated covered porch, open-concept living with built-in entertainment center and fireplace, contemporary kitchen with island seating, and accessible design. Available in multiple exterior color schemes including dark gray with white accents, coastal beige, or modern farmhouse charcoal. Premium finishes include exposed ceiling beams, modern pendant lighting, and spacious primary suite with updated bath.
Dimensions: 56' x 30'Sections: 2
Features & Amenities
Integrated covered porch
Open floor plan
Built-in entertainment center with fireplace
Kitchen island with seating
Modern pendant lighting
Exposed ceiling beams
Primary suite with updated bath
Double vanity in primary bath
Walk-in closets
Utility room
Drywall interior
Optional French doors
Optional buffet bar
ADA-accessible options
Floor Plan
Starting From
Contact Us
for personalized pricing
Bedrooms3
Bathrooms2
Square Feet1,680
Pricing varies based on location, customization, and installation.


